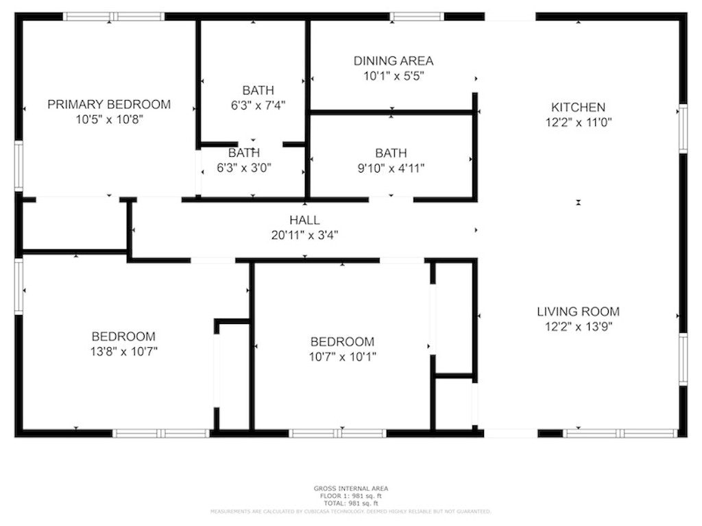
Pre-Leasing August 2026! This 3 bedroom, 2 bathroom home is at a rate of $665 per bedroom, and is close to downtown Athens, GA, the loop, and UGA North Campus. Situated on a large lot, this home has many recent updates while retaining it’s charm. Leases are signed individually, and tenants are responsible for all utilities. Please note, we do not offer roommate matching, so interested tenants must have already chosen their own roommates. We do not charge the $50 application fee until you sign the lease. Apply today if interested!





























